Makléř: Ing. Foretek David
Telefon: 777 619 ...
E-mail: foretek ...
Zobrazit celý kontaktTelefon: 777 619 939, 777 619 939
E-mail: foretek@seznam.cz
Nemovitost nabízí
CM reality, s.r.o.
Poděbradovo nám. 980/11, 796 01 Prostějov
Zobrazit kontakt na RK
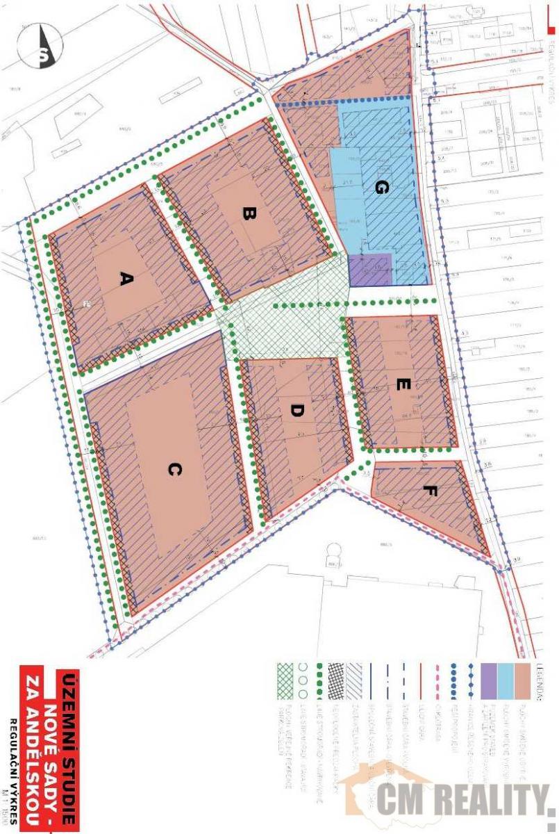
S výhradním zastoupením nabízíme k prodeji pozemek p.č. 180/19 - o výměře 2198 m2 v obci Olomouc, v místní části Nové Sady. Pozemek je veden v územním plánu v plochách smíšené obytné a veřejné rekreace. Na pozemek byla Městem Olomouc vypracována územní studie "Nové Sady - Za Andělskou", kdy celá lokalita bude určena pro zástavbu rodinnými domy. Navazující pozemek s výměrou necelé 3ha je ve vlastnictví města Olomouc. Výborná investiční příležitost. Ceny stavebně připravených pozemků v Olomouci se pohybují 6tis. až 10tis.Kč/m2 a stále rostou. <a href="https://www.eurobydleni.cz/byty/2_kk/prostejov/obec-prostejov/pronajem/"><strong>Pronájem bytu 2+kk Prostějov</strong></a>
Prodej stavebního pozemku / Olomouc - Nemilany
Vážení klienti, Pokud poptáváte rozlehlejší stavební pozemek v Olomouci se zajímavým potenciálem k individuální výstavbě, či pokud jste stavební či…
Prodej stavebního pozemku 1 172 m2, Olomouc - Nemilany
Nabízíme ke koupi pozemek s platným stavebním povolením na výstavbu bytového domu o pěti jednotkách v žádané lokalitě Olomouc - Nemilany. Projekt je…
Prodej stavebního pozemku Olomouc na Eurobydleni.cz