Makléř: Marcela Kummerová
Telefon: 774 322 ...
E-mail: marcela ...
Zobrazit celý kontaktTelefon: 774 322 461
E-mail: marcela.kummerova@dachi.cz
Nemovitost nabízí
DACHI s.r.o.
Ztracená 34, 77900 Olomouc
Zobrazit kontakt na RK
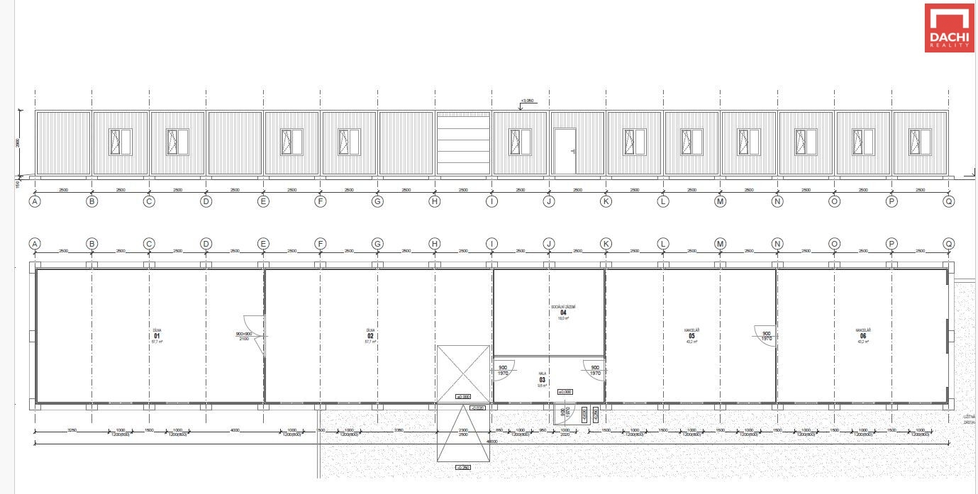
Nabízíme k prodeji strategicky umístěný komerční pozemek o rozloze 3 714 m2 v obci Přáslavice - část Kocourovec, jen pár minut od Olomouce u dálnice D35, číslo sjezdu (Exit) 268. Tento pozemek je ideální volbou pro investory i firmy, které chtějí stavět bez zbytečných průtahů. Díky vydanému stavebnímu povolení lze okamžitě stavět. Povolení je vydáno. Halu se zázemím můžete začít realizovat téměř okamžitě. Tato funkční plocha umožňuje široké využití, dle územního plánu: ✔ výroba a průmyslové provozy lehčího charakteru ✔ skladové a logistické areály ✔ podnikatelská administrativa ✔ servisní a technické zázemí ✔ vzorkové prodejny a provozovny Pozemek je ideální pro firmy, které hledají kombinaci výroby, skladování a administrativy na jednom místě. Technická infrastruktura: elektřina 415 V (3×125 A) aktuálně 3x 32A s nízkým paušálem kanalizace napojena, potrubí ukončenu v zemi u vodoměrné šachty voda připojena na funkční vodovod, ukončeno ve vodoměrné šachtě na pozemku a připravené k odběru příjezd po zpevněné komunikaci - vjezd schválen i pro kamiony Využijte příležitost v rozvíjející se lokalitě a proměňte svůj podnikatelský záměr ve skutečnost. Zavolejte si o více informací nebo si domluvte prohlídku.
Prodej pozemku, 19 620 m - Olomouc - Neředín
Nabízíme k prodeji soustavu lukrativních pozemků o celkové výměře 19 620 m, ideálních pro výstavbu fotovoltaických panelů, v katastrálním území…
Prodej pozemku, Senička, okr. Olomouc
Nabízíme k prodeji pozemkovou parcelu o celkové výměře 11509 m2. Pozemek je vedený v katastru nemovitých věcí jako trvalý travní porost. Dle…